产品特点
1.自动控制检测离心机内气体含氧量
2.在线测量离心机内气体氧含量浓度
3.离心机内气体含氧量超标报警停机功能
4.离心机内气体含氧量超标禁止启动功能
5.自动控制离心机内充氮气流量的大小
6.可根据用户工艺要求任意设定氮气含量浓度报警值,更改离心机工作条件
7.预留外部中断接口,可用来链接离心机振动保护、开盖保护等安全限制,使离心机使用起来更加安全
8.可先配PIC全自动控制系统,自动化程度更高
9.压力检测
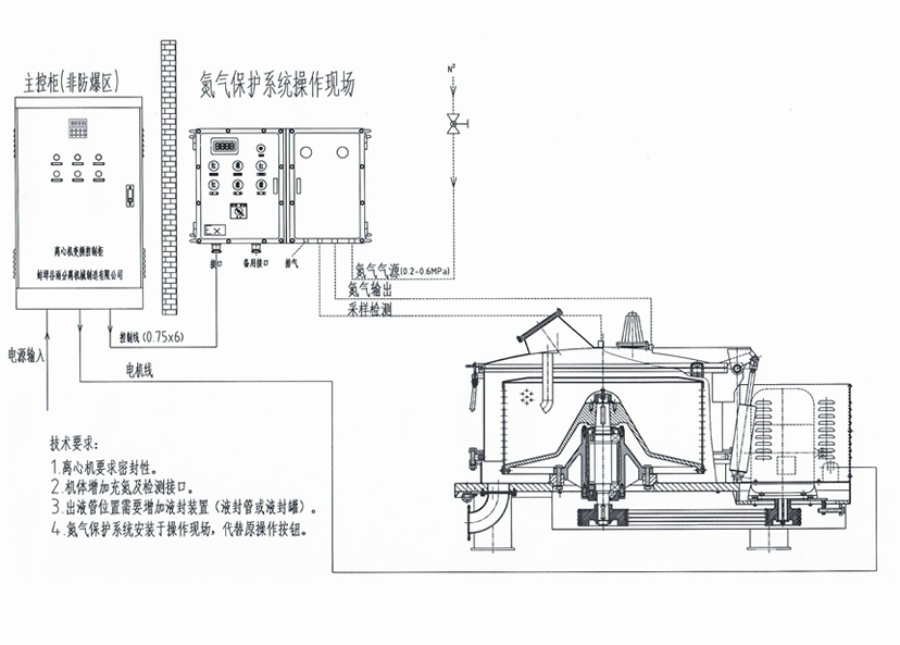
全自动氮气保护系统流程图